M—AO
43
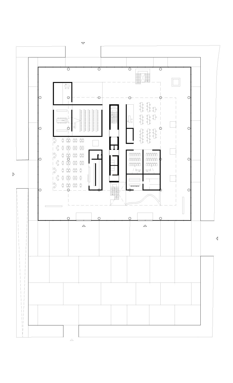
NEUE MUSEUM
There is a permanent urban tension between the structures that define the Kulturforum readable through scale, geometry, materiality. The Neue Museum is more than a straight composition or urban position, it seeks to provoke a natural architectural promenade over the historic area; over a game of positive/negative; void/mass.
Project info:
Type: Cultural — Competition “The Museum of the 20th Century and its urban integration”
Area: 16500 sqm
Location: Berlin, Germany
Year: 2015
Team: Ana Moura, Jonathan Fernandes, José Martins, Marta Machado
Project info:
Type: Cultural — Competition “The Museum of the 20th Century and its urban integration”
Area: 16500 sqm
Location: Berlin, Germany
Year: 2015
Team: Ana Moura, Jonathan Fernandes, José Martins, Marta Machado