M—AO
62
LANDSCAPE CONDITION
The site is located in a disperse territory - Vale do Ave region - which has been suffering turbulences along the decades leaving socioeconomic and spatial marks. Regarding this urban jumble that is imperfect and instable, the envelope proposes a reflective shell intended to act as a frame of its own condition.
Being placed as a regular box standing in an open field facing East, the building wants to ficcionate its own nature relating to a green corner as an idyllic approach to it.
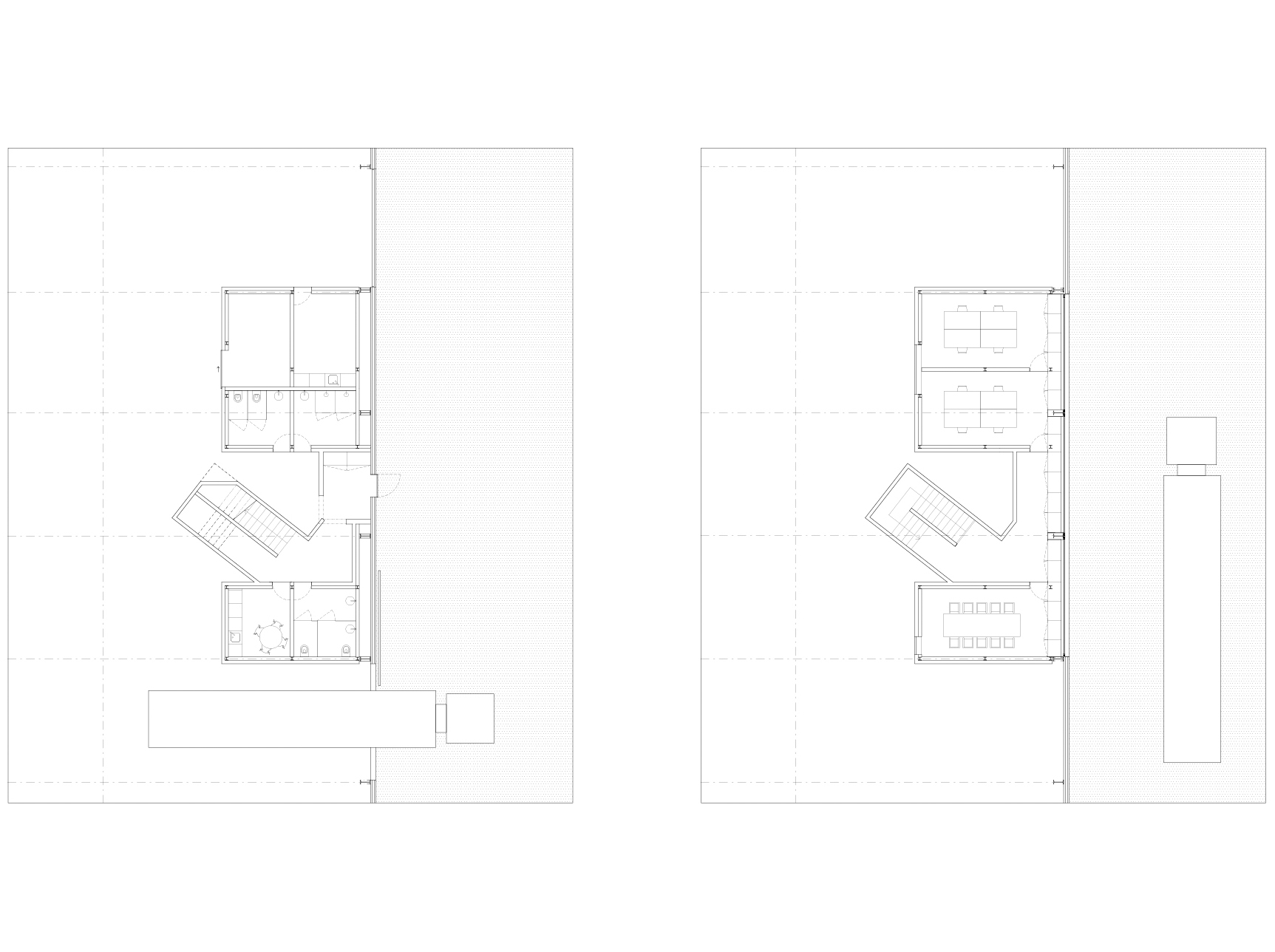
The interior container sets up on a geometrized block, a mass, with the portuguese vernacular colours, that provokes a spatial reference, the administrative management condition.
Project info:
Type: Steel warehouse
Area: 1500 sqm
Location: Guimarães, Portugal
Year: 2016—2018
Team: Barbora Babocká, José Martins, Marina Carbia, Marta Machado
Photography: NUDO
Being placed as a regular box standing in an open field facing East, the building wants to ficcionate its own nature relating to a green corner as an idyllic approach to it.
The interior container sets up on a geometrized block, a mass, with the portuguese vernacular colours, that provokes a spatial reference, the administrative management condition.
Project info:
Type: Steel warehouse
Area: 1500 sqm
Location: Guimarães, Portugal
Year: 2016—2018
Team: Barbora Babocká, José Martins, Marina Carbia, Marta Machado
Photography: NUDO