M—AO
50
COMMERCIAL AXIS
A 32 year old bakery needed to refurbish and endorse a new contemporary image. The clients had already some commercial strategies and specific equipments to adapt.
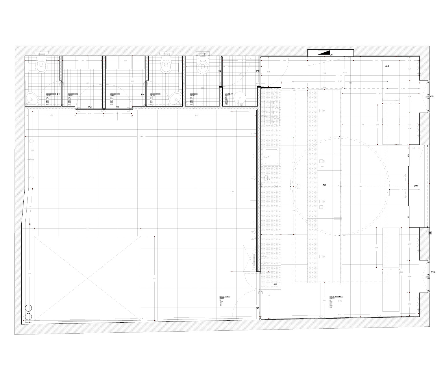
The proposal was based on a commercial movement over the marble limit which contains in itself the products index. Through that line, the space was organized on a perpendicular axis (from the entrance pendulum) which means to improve two moments of perception: generic display (on the bottom wall shelves) and a particular approach (three sets of products: bread, food and cakes).
The employee point-in-space strategy is similar, on a first moment the fast consumption client and secondly the ones seated at the tables with other rhythms and types of consumption.
Project info:
Type: Commercial
Area: 96 sqm
Location: Guimarães, Portugal
Year: 2016—2017
Team: Ana Moura , José Martins, Marta Machado
Photography: NUDO
The proposal was based on a commercial movement over the marble limit which contains in itself the products index. Through that line, the space was organized on a perpendicular axis (from the entrance pendulum) which means to improve two moments of perception: generic display (on the bottom wall shelves) and a particular approach (three sets of products: bread, food and cakes).
The employee point-in-space strategy is similar, on a first moment the fast consumption client and secondly the ones seated at the tables with other rhythms and types of consumption.
Project info:
Type: Commercial
Area: 96 sqm
Location: Guimarães, Portugal
Year: 2016—2017
Team: Ana Moura , José Martins, Marta Machado
Photography: NUDO