M—AO
90
CURTAIN OVER A WINDOW
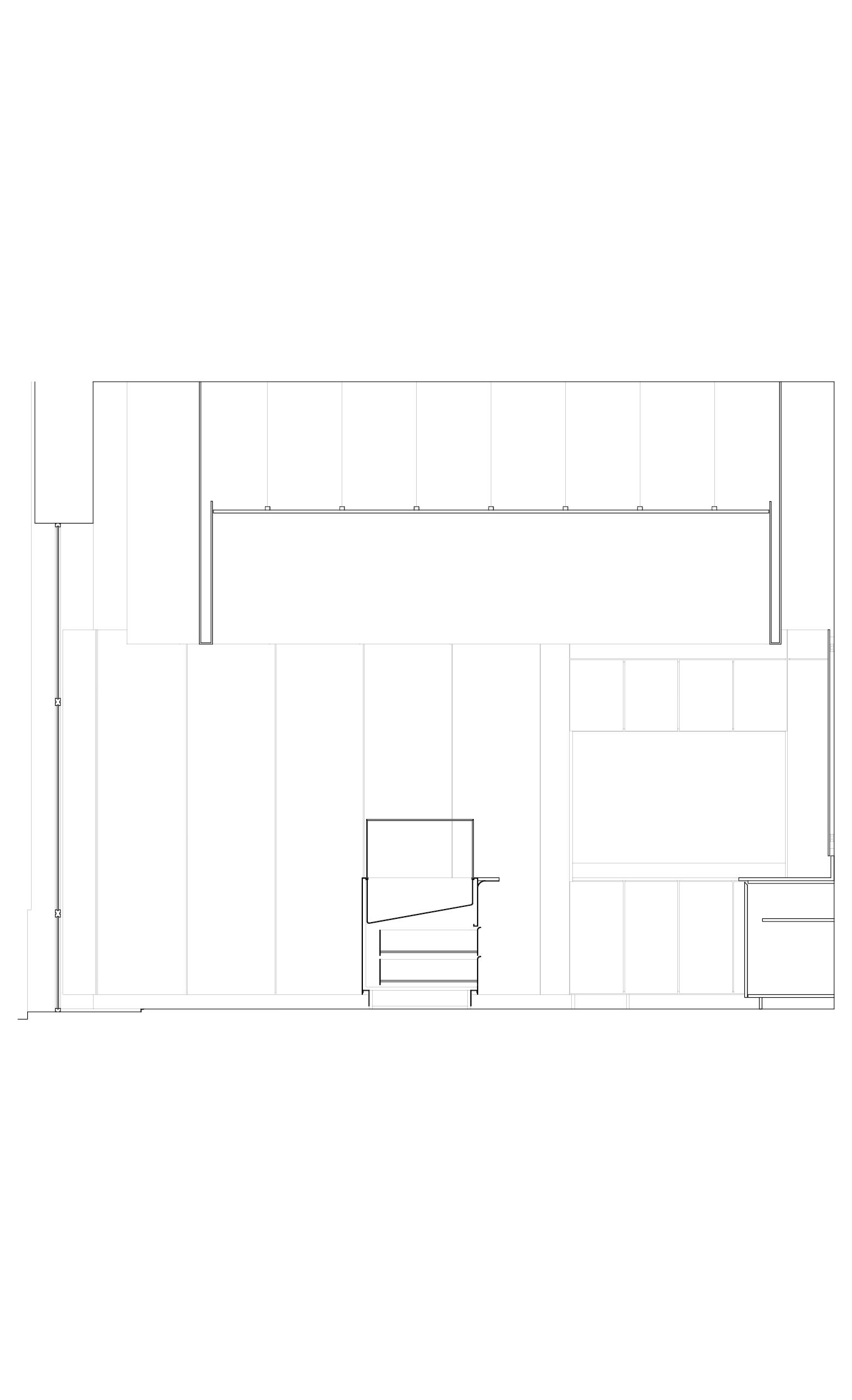
A 27 sqm pre-existence where the walls have irregular angles between each other enhanced by the floor height that questions the proportionality of the space in which a person would feel comfortable was the project issue. The space has two street fronts with a great slope, the project sought to understand the model of approach to the store and what reading this confined and high space could cause as we get closer.
We explored the idea of a curtain over the window that at a high point of the street emphasized the ceiling geometries highlighting the entrances. Playing with the ceiling allowed us to control the scale of the interior space, which was also defined by crossing the stone texture with metal shelves lined with traditional tiles.
Project info:
Type: Commercial
Area: 27 sqm
Location: Guimarães, Portugal
Year: 2019
Team: Ana Limbado, José Martins, Marta Machado, Miguel Pereira
Photography: NUDO
We explored the idea of a curtain over the window that at a high point of the street emphasized the ceiling geometries highlighting the entrances. Playing with the ceiling allowed us to control the scale of the interior space, which was also defined by crossing the stone texture with metal shelves lined with traditional tiles.
Project info:
Type: Commercial
Area: 27 sqm
Location: Guimarães, Portugal
Year: 2019
Team: Ana Limbado, José Martins, Marta Machado, Miguel Pereira
Photography: NUDO