M—AO
103
45º DIAGONALS
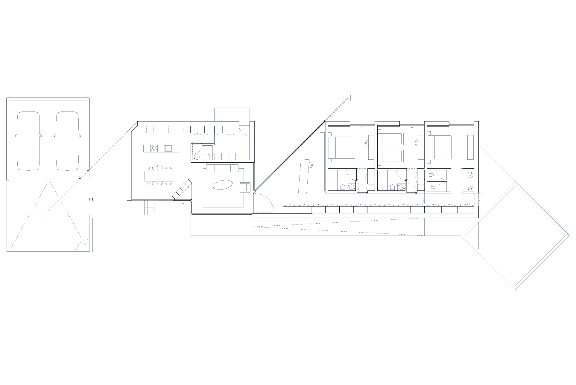
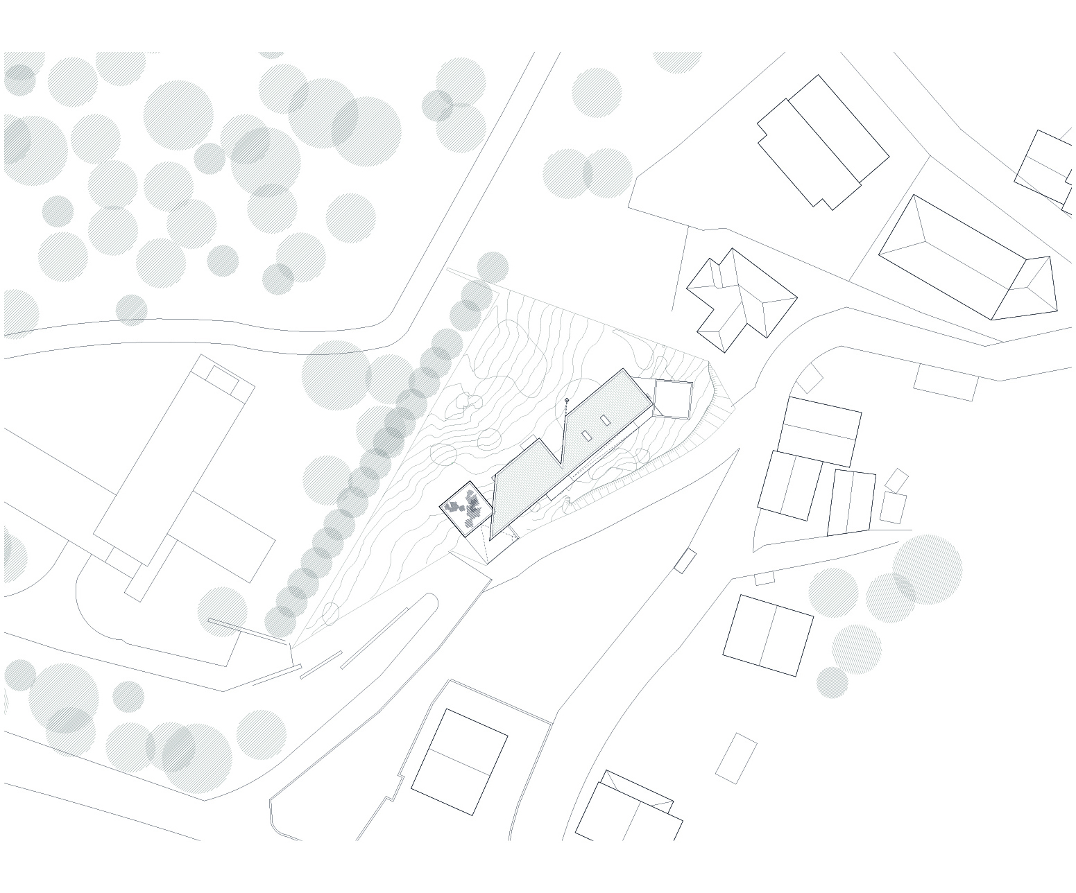
The construction site had a lot of municipal constraints besides an 8m differential from the high to the low level and being a highly rocky ground. The most structural design constraint was the definition of a different percentage of construction for each half of the land. The shape and position of the volume, for the minimum intended construction area, it was just an arithmetic game. The building base that touches the ground was the one that had to fit the percentages and, at some point, it was necessary to reduce the area. The module that divided the social area from the private area of the house seemed to be the right module to remove half of it, diagonally. Therefore, a 45º angle was defined which became the rule, whether for positioning the pool or defining the roof geometry that makes the connecting between the garage into the house.
Project info:
Type: Housing
Area: 240 sqm
Location Guimarães, Portugal
Year: 2020—
Team: Eva Martins, Hugo Santoalha, Joana Moreira, José Martins, Miguel Pereira
Project info:
Type: Housing
Area: 240 sqm
Location Guimarães, Portugal
Year: 2020—
Team: Eva Martins, Hugo Santoalha, Joana Moreira, José Martins, Miguel Pereira